DOGRADNJA VRTIĆA PALČICA Stiže preko 320 djece, novi kapaciteti, pogledajte kako će to izgledati
Glavni projekt dogradnje dječjeg vrtića Palčica je završen te je pokrenut postupak ishođenja građevinske dozvole.
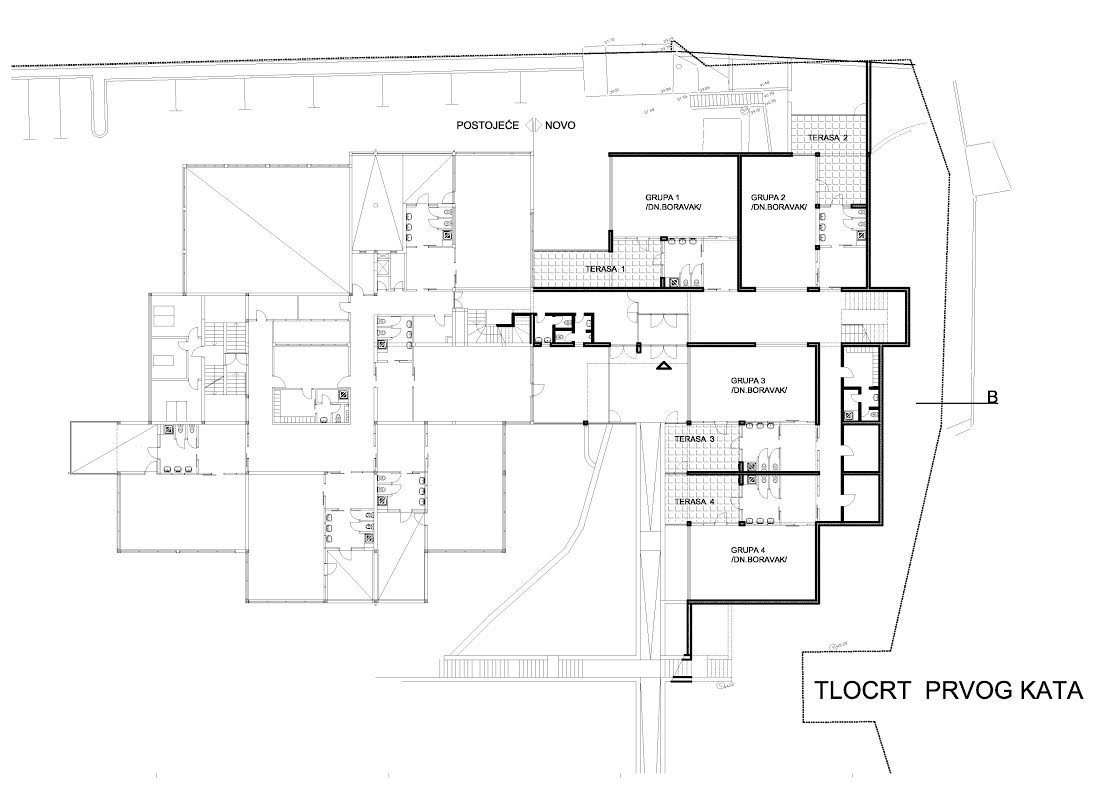
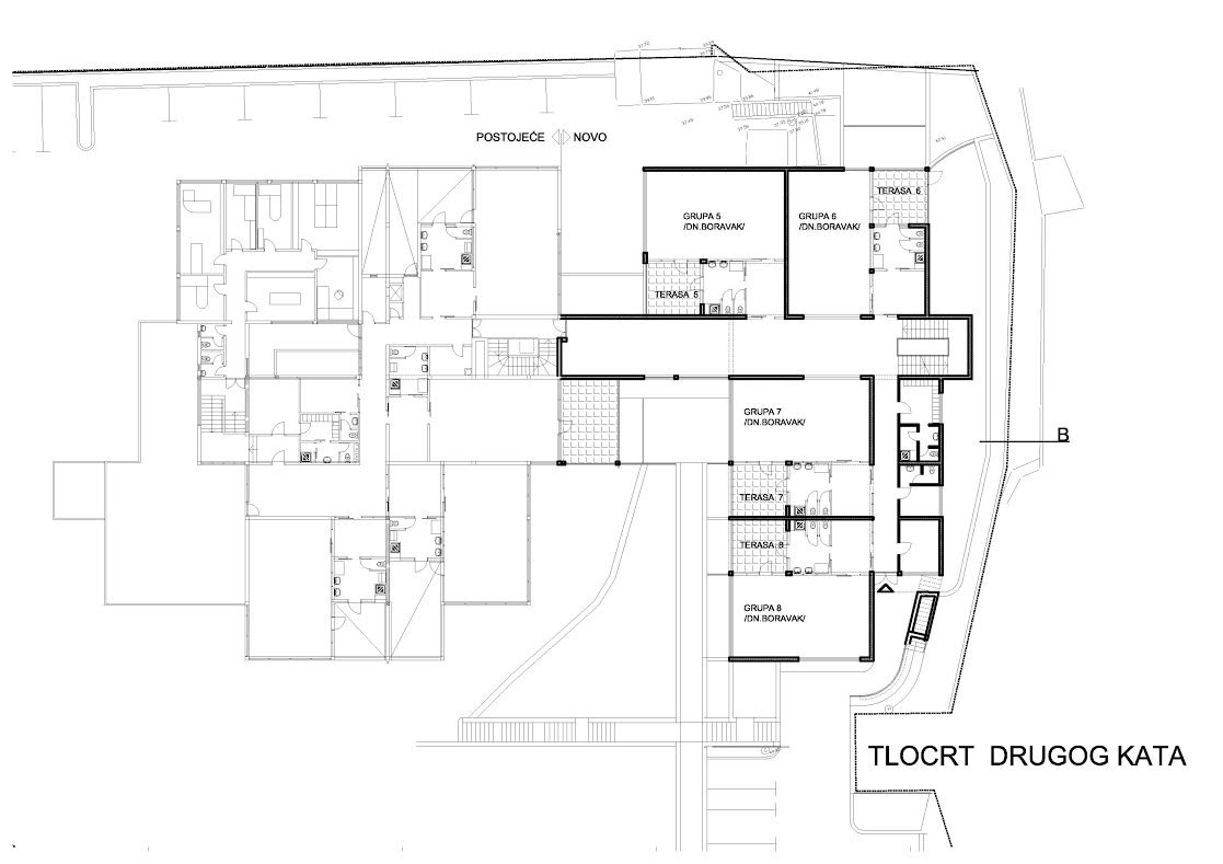
Dogradnjom Palčice predviđeno je osam novih odgojno-obrazovnih grupa, a nakon završetka dogradnje sveukupni kapacitet novog vrtića bit će 322 djece u 20 odgojno-obrazovnih grupa, što je u skladu s državnim pedagoškim standardom predškolskog odgoja i naobrazbe.
Postojeća građevina služit će za smještaj 206 djece u 12 grupa; osam vrtićkih i četiri jasličke, dok se u novoizgrađenom dijelu predviđaju četiri grupe za djecu jasličke dobi te četiri za djecu vrtićke dobi, što je ukupno 116 djece.
Investicija se procjenjuje na 11 milijuna kuna bez PDV-a, a definirana je Strategijom razvoja predškolskog odgoja na području Grada Dubrovnika do 2030. godine.


