USKORO RADOVI Sve je spremno za izgradnju novog igrališta na Babinom kuku s četiri zone

Autor: dubrovackidnevnik.hr Autori fotografija: Goran Mratinović

Na glavici Babinog kuka uskoro započinju radovi na izgradnji novog sportsko-rekreacijskog parka s dječjim i sportskim igralištem te platoima za trening i fitnes na otvorenom.

Odabrani izvođač radova, Alfaplan građenje d.o.o., uveden je u posao danas, od kada počinje teći i ugovoreni rok od 75 dana za izvođenje.

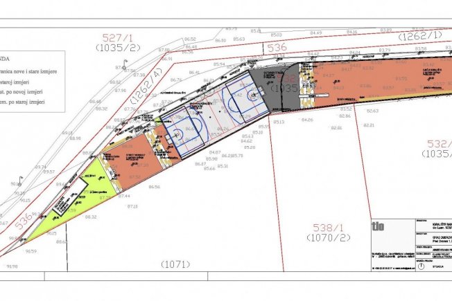
Sportsko-rekreacijski park na glavici Babinog kuka koncipiran je u četiri jedinice, s tim da jedinicu A čini dječje igralište sa zonama za djecu do 6 i za djecu iznad 6 godina koje je također opremljeno spravama za djecu s poteškoćama u razvoju.

Jedinice B i C čine plato za fitnes na otvorenom, odnosno igralište za mali nogomet i košarku, dok je na jedinici D smješten plato za trening na otvorenom (street workout). Na zapadnoj strani, izvan ograde igrališta, nalazi se klupa-tribina. Osim prostora parka uredit će se nogostup za pristup do parka, prostor za odlaganje otpada i autobusno stajalište.

Projekt je izradio TLO STUDIO d.o.o., za nadzor je zadužen  Bation inženjering d.o.o., dok vrijednost radova ukupno iznosi 2.871.591,88 kuna s PDV-om.

Realizacijom ove investicije u društvenu infrastrukturu namijenjenu sportu i rekreaciji, građani svih dobnih skupina s područja Babinog kuka dobit će novu zelenu zonu za aktivno provođenje vremena. 

Popularni Članci